The Journal of
the Korean Society on Water Environment

The Journal of
the Korean Society on Water Environment

Bimonthly
  • ISSN : 2289-0971 (Print)
  • ISSN : 2289-098X (Online)
  • KCI Accredited Journal

Editorial Office


  1. 한국수자원공사 (Korea Water Resources Corporation)



Andong-Imha diversion tunnel, Computational Fluid Dynamics (CFD), Fish screen, Flow-3D, Largemouth bass

1. Introduction

저수지 또는 하천의 취수시설에 설치되고 있는 부유물 차단망(Trash racks)은 쓰레기와 같은 부유물질의 유입으로 인한 수력발전 터빈 등과 같은 시설의 파손을 방지하며, 경우에 따라서는 좀 더 조밀한 스크린 설치를 통하여 어류 유입을 차단하여 어족자원을 보호하는 목적으로도 활용된 다. 어류 차단망(Fish exclusion screens)의 경우에는 국내에 서는 그 적용사례를 찾기 힘든 반면 유럽과 미국 등 해외 에서는 어족자원의 보호를 목적으로 어류차단망의 설치를 규정하고 있다. 유럽이사회(European council)에서는 계절 회유성 어종인 연어, 뱀장어, 송어의 손실을 방지하기 위하 여 어류차단망 설치 등 보호 대책을 반영하고 있다(Raynal et al., 2013). 수리시설물에 설치되는 스크린은 적용 목적 에 따라 다양한 형태와 재료로 구성된다.

스크린을 통과하는 흐름은 스크린 형태와 이로 인해 발 생되는 난류 및 평균유속의 변화에 따라 영향을 받게 되며 결국 에너지 손실이 발생된다. 그러나 대부분의 취수시설의 시설규모 결정을 위한 계산과정에서는 입구부 및 출구부 손실과 도수 거리에 따른 관내 마찰 손실만을 고려하고 있 는 실정이며, 부유차단 및 어류차단 스크린에 의해 발생되 는 에너지 손실은 반영하고 있지 않다. 이러한 에너지 손 실은 당초 계획한 도수 물량(Diversion water)에 미치지 못 하는 통수능력 저하를 가져오게 된다. 따라서 스크린에 의 한 흐름변화 연구는 현재까지도 많은 관심을 받고 있으며, 주로 다양한 형태의 스크린 설치로 인한 수두손실에 대하 여 수리모형실험을 통하여 다루어지고 있다(Clark et al., 2010; Osborn, 1968; Raynal et al., 2013).

수리모형 실험을 통한 연구와 더불어 수치해석을 통하여 스크린 설치가 흐름에 미치는 영향에 대한 다양한 연구가 최근 활발히 이루어지고 있다. 근래의 수치해석 접근은 3 차원 Reynolds-averaged Navier-Stokes (RANS)을 지배방정 식으로 하고 난류모형을 적용하여 좀 더 정확한 흐름해석 을 추구하고 있다(Bartzanasa et al., 2002; Ho et al. 2011; Zong and Zheng, 2012). 그러나 대부분의 수치모델링에서 는 스크린을 통과할 때 생성되는 난류 등을 직접 모델링하 여 스크린 에너지 손실을 구현하지 않고 기존 문헌에서 제 시한 스크린 수두손실 경험식을 수치계산 과정에 포함하여 해석을 수행하고 있다. 따라서 수치모델링에 적용된 경험식 에 의해 수두손실 계산결과가 크게 영향을 받게 된다. 그 럼에도 경험식을 활용하여 수치모델링을 수행하는 이유는 대부분 어류 차단 스크린은 부유물 차단망에 비해 매우 조 밀하게 구성되며, 따라서 수치모델링을 통하여 스크린에서 발생되는 난류를 구현하기 위해서는 더욱 조밀한 수치 격 자망을 요구하게 되는데, 이는 결국 컴퓨터 자원의 한계와 오랜 해석시간 소요라는 문제에 부딪치기 때문이다. 그러나 현장의 여건에 따라 계획되는 스크린의 형태와 흐름의 조 건은 매우 다양하여 일정한 가정에서 도출된 스크린 수두 손실 경험식을 일괄적으로 적용할 때에는 세심한 주의가 요구된다.

본 연구에서는 고성능의 컴퓨터 자원을 활용한 3차원 동 수역학 수치모델링을 통하여 스크린 설치에 따라 영향을 받는 흐름 변화를 그대로 재현하여 스크린에 의해 발생되 는 에너지 손실을 구현하였다. 또한 기존의 경험식으로 계 산된 결과와 비교하였으며, 터널의 통과유량에 따라 변화하 는 스크린 수두손실 계수와 터널 내·외부를 관통하는 흐름 의 유속 및 압력 변화를 규명하여 연결 터널 운영에 요구 되는 자료를 제공하였다.

2. Materials and Methods

2.1. 연구대상

연구 대상지역인 임하호 유역은 낙동강유역의 상류인 경상 북도 안동시, 영양군, 청송군을 포함하며 총면적은 1,361km2 이며, 주요 하천으로는 반변천, 용전천, 대곡천이 있다. 임 하댐은 다목적 사력댐으로 높이 73m, 길이 515m, 총저수 량 5억 9500만m3으로 연간 약 5억m3의 용수공급을 하고 있으며 홍수조절 용량 8천만m3을 가지고 있다. 안동호는 경북 안동시 성곡동에 위치한 안동댐으로 조성이 되었으며, 댐의 규모는 높이 83m, 길이 612m이며 총저수량 약 12억 5천만m3이다. 유역면적은 1,584km2으로 임하호 유역면적과 비슷하다. 그러나 총 저수용량은 약 2배 이상의 차이를 보 여주고 있다. 따라서 임하댐의 경우 여름철 호우기간 동안 안동댐에 비해 빈번한 하류 방류가 이루어지고 있으며, 이 로 인해 용수공급 능력도 안동댐의 절반을 약간 상회하는 정도이다. “안동-임하댐 연결사업”은 안동댐 개발계획 수립 초기부터 Fig. 1과 같이 양쪽 저수지를 터널로 연결하여 양 쪽 저수지의 저수용량을 효율적으로 활용하고, 댐 직하류 하천의 수질을 개선하는 등 신규댐 건설을 대체할 수 있는 효과를 기대하였다(Park and Chung, 2014).

Fig. 1. A satellite image showing study area and the location where the diversion tunnel from Imha Reservoir to Andong Reservoir is constructed.
../../Resources/kswe/KSWE.2014.30.5.477/JKSWE-30-477_F1.jpg

최근 이상기후에 의한 홍수피해 및 극심한 가뭄으로 수 자원개발 및 관리 환경은 악화되고 있는 상황이나 이·치수 를 목적으로 한 댐 건설 등과 같은 대규모 수리시설 건설 은 급격한 보상비 증가와 일부 이해당사자들의 반대에 부 딪쳐 사업 추진이 매우 어려운 실정이다. 안동댐이 준공된 이후 임하댐 및 영천도수로 등 신규사업이 수행될 때마다 지속적으로 본 사업의 추진이 검토되어 오다, 최근 기후변 화의 적응사업으로 사업의 타당성을 인정받아 마침내 건설 이 추진 중에 있다.

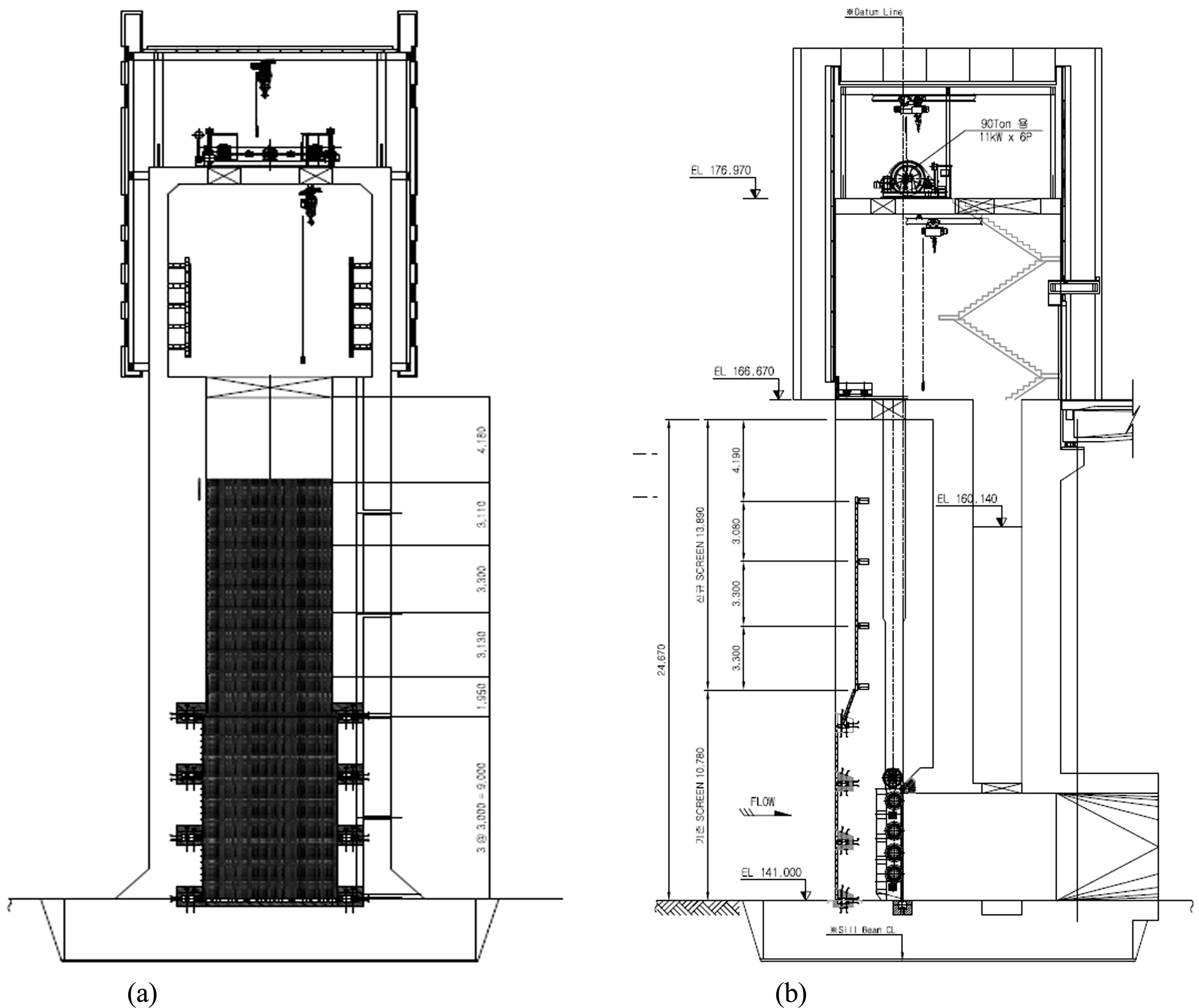
안동호와 임하호를 연결시 양쪽 저수지의 수위차에 의하 여 높은 수위에서 낮은 수위로 터널내 흐름이 발생되며, 저수지 운영에 따라 양방향 도수가 가능하게 된다. 그러나 안동호에 서식하는 외래어종인 배스의 임하호 유입에 따른 생태계 교란 가능성을 놓고 현재까지 첨예한 갈등이 빚어 지고 있는 실정으로, 양쪽 저수지의 어류 이동을 차단시키 는 방법으로 유입 터널 입구에 조밀한 어류 차단 스크린 설치를 하고 대상 어류의 소상이 불가한 유속을 확보할 수 있도록 일정 수위차에서 연결터널을 운영하는 방법이 제시 되었다. Fig. 2는 안동호 취수탑에 설치될 어류 차단망으로 가로 34mm, 세로 60mm를 유효 통수면적으로 갖도록 직경 5mm의 와이어로 구성된다.

Fig. 2. Intake tower equipped with the screens which can prevent fish entry into the tunnel. (a) front view, (b) side view
../../Resources/kswe/KSWE.2014.30.5.477/JKSWE-30-477_F2.jpg

2.2. 스크린 설치에 따른 연결터널 도수유량 계산식

Bureau of Reclamation (1987)에서는 스크린의 총면적과 통수단면적의 비율을 유효 통수면적이라 규정하고 유효 통 수면적에 따라 스크린 수두손실 경험식을 아래와 같이 제 시하였으며, 스크린 막대의 형태와 스크린 설치각도의 영향 은 무시하였으나, 부유물의 부착으로 인한 유효 통수단면적 의 변화는 고려할 수 있도록 하였다.

(1)
h l = 1.45 - 0.45 R - R 2 V 2 2 g

여기서 hl 은 손실수두(m), R 은 전체 스크린 면적과 유효 통수면적의 비율, V 는 스크린 통과 평균 유속(m/s)이다. Kirschmer (1926)는 스크린의 설치각도를 고려한 수두손실 경험식을 제시하였으며, 현재까지 부유물 차단망 설계를 위 해 가장 많이 활용되고 있다.

(2)
h l = K F t b 4 / 3 V R 2 2 g sin α

여기서, KF 는 스크린 봉의 형태에 따른 계수(직사각형은 2.42, 반원형은 1.83), t 는 스크린 막대의 직경(mm), b 는 스 크린 막대사이의 통수단면의 거리(mm), VR 은 접근유속 (m/s), α 는 스크린의 각도(°)이다. 부유물 차단망과 비교해 서 어류 차단 스크린의 경우에는 매우 조밀한 간격으로 스크 린 막대가 설치되며, 이로 인해 수두손실은 증가하게 된다. Padmanadhan and Vigander (1978)는 스크린 형태에 해당하 는 손실 계수 K 를 전체 스크린 면적 대비 유효 통수면적 비율의 함수로 제시하였다.

(3)
h l = K V R 2 2 g

안동-임하호 연결 터널의 관내 흐름은 일반적으로 관의 특성제원, 길이, 손실수두, 수두차 및 유량과의 관계에 의해 결정되며, 터널내 관수로 흐름의 통과 유량은 Darcy-Weisbach 공식을 적용하여 계산할 수 있다. 관수로내 손실은 관마찰손실과 저수지에 관이 연결되었을 때 관의 출구에서 생기는 출구손실 및 저수지 유입구 손실 등과 같이 흐름의 단면에 갑작스러운 변화로 인한 미소손실(minor losses)을 포함한다. 또한 이번 연구에서는 터널 입출구부에 부유물 차단망 및 어류차단 스크린이 설치되므로 이에 대한 손실을 추가하였다. 제반 손실 항목을 모두 포함한 Darcy-Weisbach 공식은 아래와 같다.

(4)
Δ H = f e + f L D + f o + K F + K V 2 2 g

여기서 ΔH는 저수지의 수두차 (m), fe 는 유입구 손실계수 (=0.5), f 는 관마찰계수, fo 는 유출구 손실계수(=1.0), L은 연결터널 연장(=1,925m), D는 연결터널 직경(=5.0m), KF 및 K 는 부유물 차단망 및 어류차단 스크린에 의한 손실계 수이며 식 (2)와 식 (3)에 의해서 각각 0.2, 0.85로 계산되 었다. 관마찰계수 f 는 매닝의 조도계수 n 과의 상관관계식, f = 124.579n2/D1/3 에 의해서 산출되며 본 연구에서는 0.014 을 적용하였다.

연결터널 내 외래어종인 배스(Micropterus salmoides)의 터널내 유입 및 소상을 방지하기 위해서는 소상능력 이상의 유속이 형성되게 터널내 통과유량을 유지하여야 한다. An (2014)은 취수탑 앞에 설치된 스크린(폭 3.0cm, 높이 6.0cm) 을 감안시, 스크린을 통과할 수 있는 크기의 배스의 소상력 분석을 위하여 동수역학 어류 소상력 분석 모형 FishXing (U.S. Forest Service, 2006)을 활용하였다. 임하호 및 안동 호의 경우 여름철 수온 성층이 발달하게 되므로 터널내 유 입되는 물의 수온이 크게 달라질 수 있다. 따라서 수온변동 에 따른 배스의 소상력 변화를 고려하기 위하여 터널내 유 입수의 온도가 10~25°C에서 변화한다고 가정하여 분석을 수행하였다. 분석결과 스크린을 통과할 수 있는 크기의 배 스의 소상을 방지하는 터널내 유속과 통과유량은 각각 1.48 m/s 및 35.16 m3/s으로 계산되었다. 따라서 안동-임하호 연결 터널의 운영은 통과유량 약 35.16m3/s 보다 큰 유량이 발생하 는 수위차조건에서의 연계 운영을 제시하고 있다.

2.3. 수치해석

2.3.1. 해석모형 개요

본 연구를 위해 적용된 전산유체동역학(Computational Fluid Dynamics, CFD) 모형인 FLOW-3D는 기본적으로 비정상 유동상태에 대하여 연속방정식과 3차원 Reynolds-averaged Navier-Stokes (RANS) 방정식을 지배방정식으로 사용하여 해석을 수행한다. 직교좌표계에서 수치모형의 지배방정식은 아래와 같이 표현된다.

(5)
u i t + u j u i x j = - 1 ρ p x i + x j ν u i x j - u i u j ¯ + g i
(6)
u i x i = 0

여기서 ui는 직각좌표계 (x, y, z)에서의 평균유속성분, t 는 시간, ρ는 유체의 밀도, p 는 총압력, ν 는 유체의 동점성계 수 (Kinematic viscosity), –u'iu'j는 레이놀즈응력이다. 또 한 여기서 문자위 가로줄 (–)은 난류변동성분의 평균값을 의미한다. RANS 모형에서는 난류에 의해 u'iu'j의 추가항 이 생성되며, 난류에 의해 발생되는 운동량 흐름률이라 정 의할 수 있다. Boussinesq 난류 동점성이론을 이용하여 u'iu'j는 아래와 같이 정리할 수 있다.

(7)
- u i u j ¯ = ν t u i x j + u j x i - 2 3 k δ ij

여기서 νt는 난류 동점성계수; δij는 Kronecker delta; k는 난류운동에너지(kinetic energy)이다. 시간평균한 RANS 방 정식의 종결문제는 난류모형을 적용하여 해결할 수 있으며, 본 연구에서는 격자의 크기에 비해 대단히 작은 크기의 eddy들이 존재하는 난류장에 대하여 우수한 해석결과를 제 공하는 Renormalization-group (RNG) k - ε 모형 (Yakhot et al., 1992; Yang et al., 1996)을 선택하였다.

2.3.2. 모형의 구성 및 경계조건 설정

Flow-3D 모형은 아래 Fig. 3과 같이 Stereolithography (STL) 형식으로 구축된 저수지의 하상과 구조물의 형상을 Fractional Area - Volume Obstacle Representation (FAVOR)방법을 통하 여 인식하게 된다. 이를 통하여 지형과 구조물의 형상에 영향을 받는 흐름을 정확하게 해석할 수 있게 된다(Hirt, 1993).

Fig. 3. Three-dimensional bathymetric modeling as a high-resolution stereolithography format.
../../Resources/kswe/KSWE.2014.30.5.477/JKSWE-30-477_F3.jpg

취수탑에 설치된 부유물 차단망과 어류 차단 스크린의 경 우에는 다수의 단위 스크린이 서로 조합이 되어 전체 스크린을 구성하게 된다. 단위 스크린의 제원은 아래 Table 1과 같다.

Table 1. General features of the unit screen installed to the intake towers
Width (m) Height (m) Total area (m2) Blocked area (m2) Area open to flow (%)
Trash screen 1.902 2.980 5.668 1.224 0.78
Fish screen 1.902 2.980 5.668 2.094 0.63

부유물 차단망의 경우는 안동댐 취수탑과 임하댐 취수탑 모두에 설치되었으나, 어류 차단 스크린은 Fig. 4에서 볼 수 있듯이 안동댐 취수탑에만 설치되었으며, 기존 부유물 차단망과 겹치게 설치되었다.

Fig. 4. (a) Trash racks on the intake tower in Imha Reservoir, (b) Trash racks and fish screens on the intake tower in Andong Reservoir.
../../Resources/kswe/KSWE.2014.30.5.477/JKSWE-30-477_F4.jpg

부유물 차단망 및 어류 차단 스크린이 설치된 안동-임하 호 연결터널에 대한 수치해석 격자망은 Fig. 5에서 보여준 다. 해석영역은 임하댐 취수탑, 안동댐 취수탑 및 안동-임 하호 연결터널을 포함하도록 충분한 영역을 설정하였으며 안동호 스크린 중앙을 평면의 원점으로 하고 연직좌표는 실제 고도와 일치하도록 설정하였다. 해석영역은 흐름의 방 향으로 2,085m, 흐름의 직각방향으로 120m, 높이 방향으로 는 29m로 구성되었다.

Fig. 5. Computational domain with the structured mesh in FLOW-3D, consisting of approximately 20 million cells. Grid consists of several internal interfaces, where cell size changes variously. Because of extremely small cell size near screens, the grid near intake towers is not clearly visible in this figure. Details of grids are found in Table2.
../../Resources/kswe/KSWE.2014.30.5.477/JKSWE-30-477_F5.jpg
Table 2. Meshing system for the simulations in this study
Sub-domains x -direction y -direction z -direction Total meshes
Location Meshes Location Meshes Location Meshes
1 -0.005m ~ 0.010m 3 -2.942m ~ -0.001m 528 140.98m ~ 145.5m 688 1,089,792
2 -0.005m ~ 0.010m 3 -0.001m ~ 2.942m 528 140.98m ~ 145.5m 688 1,089,792
3 -0.005m ~ 0.010m 3 -2.942m ~ -0.001m 528 145.45m ~ 150.01m 702 1,111,968
4 -0.005m ~ 0.010m 3 -0.001m ~ 2.942m 528 145.45m ~ 150.01m 702 1,111,968
5 -0.13m ~ 0.030m 18 -2.965m ~ 2.965m 527 140.98m ~ 150.03m 815 7,731,090
6 -0.17m ~ 0.070m 14 -3.005m ~ 3.005m 298 140.96m ~ 150.07m 454 1,894,088
7 -0.25m ~ 0.150m 11 -3.085m ~ 3.085m 153 140.96m ~ 150.12m 240 403,920
8 -0.41m ~ 0.310m 9 -3.25m ~ 3.25m 81 140.96m ~ 150.32m 122 88,938
9 -0.73m ~ 0.630m 9 -3.57m ~ 3.57m 45 140.58m ~ 150.64m 66 26,730
10 -1.68m ~ 1.580m 10 -4.2m ~ 4.2m 28 140.30m ~ 151.275m 34 9,520
11 -2,025m ~ 60.0m 1,390 -60.0m ~ 60.0m 130 134.95m ~ 165.50m 38 6,866,600
Total meshes in the computational domain 21,424,406

직경은 5.5m이고 길이는 1,925m에 이르는 연결터널에 비해 부유물 차단망과 어류차단 스크린의 형상은 상대적 으로 매우 작은 규모이다. 직경 5 mm 와이어로 구성된 스 크린 형상을 표현하기 위해 매우 작은 격자가 필요하나, 연결터널과 취수탑 및 댐 일부 영역을 포함하도록 해석모 델을 작성해야 하므로 영역에 따라 격자망의 크기를 조정 하였다. 그러나 대규모의 해석영역의 경우에는 가변격자를 사용한다 해도 전체 격자수는 매우 커져 효율적인 계산이 불가능해지게 된다. 이러한 문제를 해결하기 위하여 조밀 한 격자망이 필요한 스크린 설치영역에 대하여 FLOW-3D 에서 제공하는 내포격자망을 적용하였다(Flow science, 2014). 즉, 7단계의 내포격자를 사용하여 부유물 차단망 및 어류 스크린을 포함하는 영역에는 매우 조밀한 격자가 생성되 도록 하였으며 그 외 영역에는 상대적으로 성긴 격자로 구성하였다. 해석에 사용된 전체 격자수는 약 2천만 개이 며 상세한 격자정보를 Table 2에 제시하였다. 본 연구에서 는 해석대상역역에 적용된 약 2천만개 수치격자망의 계산 용량을 감당하기 위하여 CentOS V6.5 리눅스 운영체제에 서 메모리 용량은 64GB, CUP는 12개의 CPU 자원을 동시 에 활용할 수 있는 Intel Core i7-3930K로 구성된 전산기를 활용하였다. 수치해석 대상영역 경계조건으로 양쪽 저수지 수위를 경계조건으로 설정하였다. 이는 실제 저수지 용량 에 비해 터널 도수유량이 상대적으로 매우 적어 터널 개 방으로 인한 도수유량 발생시 단기간 동안 저수지 수위의 변화는 매우 미미하므로 고정된 저수지 수위를 유입 및 유출의 경계조건으로 설정하는 것은 물리적으로 타당하다 고 판단된다.

2.3.3. 해석조건 설정

당초 “안동-임하댐 연결사업”은 양방향의 저수지 운영을 통하여 최대한 양쪽 저수용량을 효율적으로 모두 활용하는 것으로 계획되었으나, 안동호에 서식하는 외래어종인 배스 의 임하호로의 유입에 대한 우려가 제기됨에 따라 불필요 한 갈등 해소차원에서 안동 취수탑에 어류차단 스크린 설 치와 임하댐에서 안동호로의 단방향 운영이 제안되었다. 그러나 신설 어류차단 스크린 설치에 의한 추가 에너지 손 실과 이로 인한 도수 물량 감소는 결국 어류소상 한계유속 이하로 터널내 유속을 저하시킬 수 있으므로 어류차단 스 크린 설치에 따른 흐름 변화를 수치모델링을 통하여 분석 하였다. 수치모델링은 당초 실시설계(K-water, 2012)에서 제 시한 수문폐쇄 조건과 개방조건의 양 저수지 수위차(1m, 2m)에 대하여 수행되었으며, 또한 시설물의 수리학적 안전 성 검토를 위하여 홍수기 최대 운영범위인 양쪽 저수지 수 위차 10m을 포함하여 터널내 유속과 압력의 변화를 분석 하였다. Table 3.

Table 3. Summary of simulation setup
Case no. Water stage (EL. m) Operation rules
Imha Reservoir Andong Reservoir
1 160 150 During a flood, in case the water stage of Imha Reservoir >EL.160.0m and ΔH>10m, the gate is closed
2 150 148 When the water stage of Imha Reservoir >EL.150.0m and ΔH>2.0m, the gate is opened
3 148 147 When the water stage of Imha Reservoir > EL.148.0m and ΔH<1.0m, the gate is closed

3. Results and Discussion

Fig. 6에서는 스크린 설치 전후를 가정하여 양 저수지의 수위낙차에 따른 터널 도수 유량을 비교하였다. 스크린 설 치에 따라 터널의 통수능력은 스크린이 없는 경우에 대비 해 약 8.5% 정도 저하가 발생되는 것을 보여 주고 있다. 부유 차단망 및 어류차단 스크린을 고려한 수치해석 결과 와 이론식으로 계산된 터널 도수유량과는 유사한 계산결과 를 보여주고 있으며, 모두 양쪽 저수지의 수두차가 약 1.0m 이상에서는 배스의 소상을 방지하는 유속이 발생되는 것으 로 검토되었다. 수치해석 결과는 이론식 대비 약 3.6~5.8% 낮은 통수능력을 보여주고 있다.

Fig. 6. Calculated diversion discharge through the connecting tunnel depending on the difference in water stage between two reservoirs.
../../Resources/kswe/KSWE.2014.30.5.477/JKSWE-30-477_F6.jpg

Fig. 7은 터널내 도수 유량 증가에 따라 안동호 취수탑 스크린 전·후의 흐름에 대한 압력수두의 분포를 보여주고 있으며 스크린 통과에 따른 압력저하가 발생하고 있다. 이 는 스크린 설치에 따른 수두 손실을 의미한다. 수치모델링 을 통하여 스크린 수두 손실계수는 약 1.5으로 산정되었으 며, Kirschmer (1926)Padmanadhan and Vigander (1978) 에서 제시한 부유물 차단망과 어류 차단 스크린의 손실계 수의 총합인 1.06보다 높게 계산되었다. 이는 기존 문헌의 연구에서는 단일 스크린이 설치된 경우에 국한하여 실험이 진행되었으나, 본 연구 대상의 취수탑에 설치된 스크린은 문헌에서 제시된 경우와 다르게 부유 차단망과 어류차단 스크린이 서로 겹쳐서 부착되게 계획되어 기존의 문헌에서 제시한 손실계수보다 크게 산정되었다고 판단된다.

Fig. 7. Changes in pressure due to the screen installed on the intake tower of Andong Reservoir. (a) Q = 113.82 m3/s, Case 1; (b) Q = 51.83 m3/s, Case 2; (c) Q = 36.81 m3/s, Case 3
../../Resources/kswe/KSWE.2014.30.5.477/JKSWE-30-477_F7.jpg

3.1. 해석조건별 흐름해석 결과

3.1.1. 홍수기 운영조건 (Case 1)

임하호 수위를 EL. 160.0m로, 안동호 수위는 EL. 150.0m 으로, 홍수기간 동안 운영이 가능한 수위로 각각 설정하였으 며 수문은 개방된 조건으로 수치모델링을 수행하였다. Fig. 8 에서는 수치모델링을 통하여 분석된 수면의 변화 및 흐름의 유속 분포를 보여주고 있다.

Fig. 8. Spatial distributions of velocities in m/s with the simulation setup (Case 1).
../../Resources/kswe/KSWE.2014.30.5.477/JKSWE-30-477_F8.jpg

안동호 취수탑 주변 수면에 최대 4m/s의 유속이 발생하 는 반면 임하 취수탑 주변 유속은 0.3m/s 이하로 낮은 유 속이 나타나는 것으로 검토되었다. 홍수기 조건에서 터널 도수량은 113.82m3/s에 이르며, 터널내 평균 유속은 4.79m/s 로 산정되었다. 임하댐 취수탑에 설치된 부유물 차단망에 의해서는 수위변화가 거의 나타나지 않으며 단지 터널내 진입에 따른 유입면적의 감소로 인한 유속증가만이 발생하 는 것으로 검토되었다. 연결터널로 유입되며 점차 유속이 발달하며 터널단면 중심부에서는 최고 유속 약 6.8m/s 에 도달하며 흐름은 완전히 발달하게 된다.

Fig. 9에서는 안동호 취수탑 유동상황 및 압력의 종단 변 화를 보여주고 있으며, 어류 차단 스크린 유동저항에 의해 발생되는 유속 저하를 확인할 수 있다. 또한 스크린 주위 국부적인 수위 상승도 관측되었다. 스크린 통과 후 통수 단면의 급확대에 따라 유속의 저하가 일어나며 방류유량에 의해 스크린에 미치는 힘은 약 140,000N으로 국부적 수위 상승에 따른 높은 압력이 발생하고 있음을 알 수 있다.

Fig. 9. Longitudinal profiles of velocity and pressure for case 1. (a) near Imha Reservoir intake tower, (b) in the middle of the connecting tunnel, (c) near Andong Reservoir intake tower
../../Resources/kswe/KSWE.2014.30.5.477/JKSWE-30-477_F9.jpg

3.1.2. 수문개방 조건 (Case 2)

임하호 수위는 EL. 150.0m, 안동댐 수위는 EL. 148.0m로 설정된 수문개방 조건(CASE 2)에 대한 해석결과는 Fig. 10과 같다. 터널내 통과유량은 51.83m3/s, 평균 유속은 2.18m/s로 산정되었다. 이는 어류소상 한계유속 1.48m/s을 초과하므로 수문개방 운영기간 동안 배스의 소상은 불가능하다 판단된 다. 안동 취수탑 주변 수면에 최대 2m/s의 유속이 발생하 는 반면 임하 취수탑 주변 유속은 0.2m/s이하로 낮은 유속 이 나타나는 것으로 검토되었다. 어류차단 스크린에 작용하 는 유동힘은 31,000N로 나타났다.

Fig. 10. Longitudinal profiles of velocity and pressure for case 2. (a) near Imha Reservoir intake tower, (b) in the middle of the connecting tunnel, (c) near Andong Reservoir intake tower
../../Resources/kswe/KSWE.2014.30.5.477/JKSWE-30-477_F10.jpg

3.1.3. 수문폐쇄 조건 (Case 3)

수문폐쇄 조건인 임하호 수위 EL. 148.0m 및 안동호 수 위 EL. 147.0m의 해석조건(Case 3)설정에 따라 발생되는 임하호에서 안동호로의 흐름을 분석하였으며, Fig. 11에서 해석결과를 보여주고 있다. 임하호 취수탑에서 유입되는 유 동은 관수로 형태의 흐름을 유지할 수 있으며 연결 터널 전 영역에서 개수로 흐름은 나타나지 않았다. 터널 도수량 은 36.81m3/s, 평균유속 1.55m/s로 산정되어 어류소상 한계 유속 1.48m/s을 초과하여, 배스의 터널내 유입은 불가능 할 것으로 판단된다.

Fig. 11. Longitudinal profiles of velocity and pressure for case 3. (a) near Imha Reservoir intake tower, (b) in the middle of the connecting tunnel, (c) near Andong Reservoir intake tower
../../Resources/kswe/KSWE.2014.30.5.477/JKSWE-30-477_F11.jpg

4. Conclusion

당초 안동호와 임하호의 연결터널 양방향 운영에서 안동 호에 대량으로 서식하고 있는 외래어종 배스의 이동을 막 기 위해 안동호 취수탑에 어류 차단 스크린 설치가 검토되 었으며 당초 양방향으로의 운영에서 임하호에서 안동호로 만의 단방향 운영이 제시되었다. 이에 따라 계획된 어류 차단 스크린으로 인한 손실수두를 산정하고, 이로 인한 유 속저하 범위를 수치해석을 통하여 검토하였다. 도출된 주요 결론은 다음과 같다.

  1. 터널의 운영조건 중 가장 수위차가 작은 수문폐쇄 조건 (Case 3)에 대한 수치모델링 결과, 스크린에 의한 도수량 및 유속 저하는 스크린이 없는 경우에 대비해 약 8.6% 감 소된 36.81m3/s 및 1.55m/s으로 각각 산정되었으며, 수두 손실계수는 약 1.5으로 계산되었다. 터널내 전 영역에 걸 쳐 관수로 흐름이 유지되며 평균유속은 어류소상 한계유 속 1.48m/s을 상회하고 있으므로 안동호에서 임하호로의 배스의 소상은 이루어질 수 없다고 판단된다.

  2. 부유 차단망 및 어류차단 스크린 손실 추정 경험식으로 계산한 터널도수유량값과 수치해석 결과는 유사하며, 양 쪽 저수지의 수두차가 약 1.0m 이상에서는 배스의 소상 을 방지하는 유속을 유지시킬 수 있는 것으로 검토되었 다. 수치해석 결과는 경험식으로 계산된 통수유량 대비 약 3.6~5.8% 낮은 값을 보여주고 있다.

  3. 수치모델링 결과, 홍수기 조건인 양쪽 저수지의 수위차 10m에서는 터널의 도수량과 터널내 평균 유속은 각각 113.82m3/s와 4.79m/s로 계산되었으며, 안동호 취수탑 스 크린에 작용하는 수충격은 140,000N으로 검토되었다. 본 해석결과는 스크린의 구조 안전성 평가를 위한 기초자료 로 활용될 수 있을 것으로 판단된다.

References

1 
An K. G., 2014, Estimation of Critical Ascending Velocity for Largemouth Bass, [Korean Literature], K-water Consulting ReportGoogle Search
2 
Bartzanasa T., Boulardb T., Kittasa C., 2002, Numerical Simulation of the Airflow and Temperature Distribution in a Tunnel Greenhouse Equipped with Insect-proof Screen in the Openings, Computers and Electronics in Agriculture, Vol. 34, No. 1-3, pp. 207-221Google Search
3 
Bureau of Reclamation, 1987, Design of Small Dams
4 
Clark S.P., Tsikata J.M., Haresign M., 2010, Experimental Study of Energy Loss through Submerged Trashracks, Journal of Hydraulic Research, Vol. 48, No. 1, pp. 113-118Google Search
5 
Flow Science, 2014, User Guide and Manual Flow-3D Version 11
6 
Hirt C.W., 1993, Volume-fraction Techniques: Powerful Tools for Wind Engineering, Journal of Wind Engineering and Industrial Aerodynamics, Vol. 46-47, pp. 327-338Google Search
7 
Ho J., Coonrod J., Hanna L.J., Mefford B.W., 2011, Hydrodynamic Modelling Study of a Fish Exclusion System for a River Diversion, River Research and Applications, Vol. 27, No. 2, pp. 184-192Google Search
8 
Kirschmer O., 1926, Untersuchungen uber den Gefallsverlust an Rechen, Mitteilungen des hydraulischen Instituts der TH Munchen
9 
K-water, 2012, [Korean Literature], Detailed Design Report for Andong-Imha Connection Tunnel Construction Project, K-water
10 
Osborn J., 1968, Rectangular-bar Trashrack and Baffle Headlosses, Journal of Power Division, Vol. 94, No. 2, pp. 111-123Google Search
11 
Padmanabhan M., Vigander S., 1978, Pressure Drop Due to Flow Through Fine Mesh Screens, Journal of the Hydraulics Division, Vol. 104, No. 8, pp. 1191-1195Google Search
12 
Park H.S., Chung S.W., 2014, Water Transportation and Stratification Modification in the Andong-Imha Linked Reservoirs System, [Korean Literature], Journal of Korean Society on Water Environment, Vol. 30, No. 1, pp. 31-34Google Search
13 
Raynal S., Courret D., Chatellier L., Larinier M., David L., 2013, An Experimental Study on Fish-friendly Trashracks- Part 1. Inclined Trashracks, Journal of Hydraulic Research, Vol. 51, No. 1, pp. 56-66Google Search
14 
U.S. Forest Service, 2006, FishXing User Manual and Reference, U.S. Forest Service
15 
Yakhot V., Orszag S.A., Thangam S., Gatski T.B., Speziale C.G., 1992, Development of Turbulence Models for Shear Flows by a Double Expansion Technique, [Korean Literature], Physics of Fluids, Vol. 4, pp. 1510-1520Google Search
16 
Yang H.C., Ryou H.S., Lim J.H., 1996, A Study of Applicability of a RNG k–ε Model, Transactions of the Korean Society of Mechanical Engineers B, Vol. 21, No. 9, pp. 1149-1164Google Search
17 
Zong Q.L., Zheng T.G., 2012, Numerical Simulation on Flow Field of Screen Filter for Drip Irrigation in Field, Applied Mechanics and Materials, Vol. 212-213, pp. 1197-1200Google Search